Sold

ATTENTION RENOVATORS / INVESTORS

This little pocket rocket of a home has far more to offer than meets the eye.

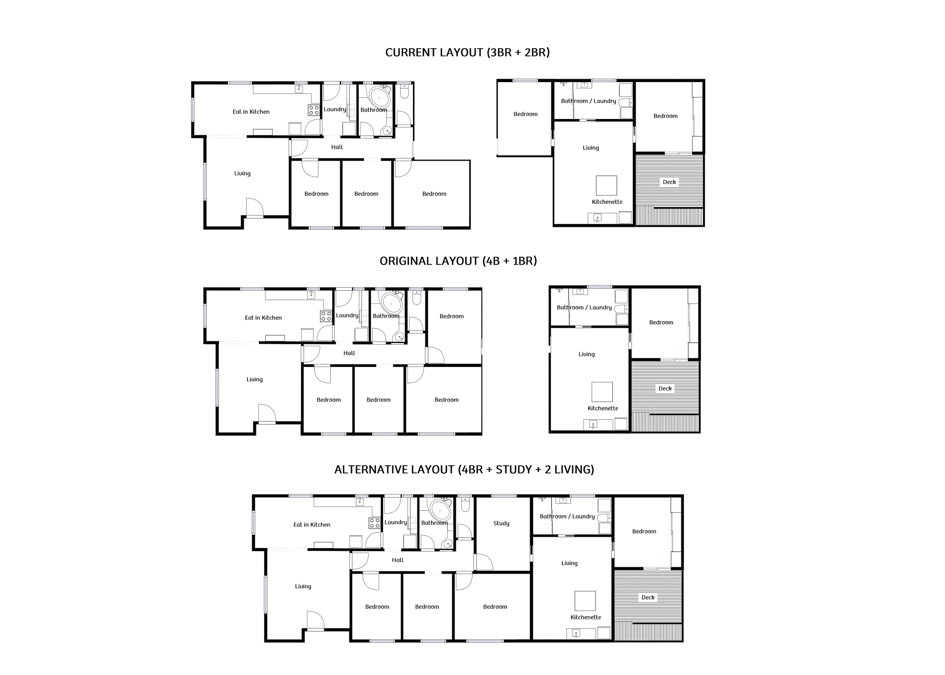
16 Meehan Street is essentially a 5 bedroom, 2 bathroom, 2 living area home! Originally a 4br 1bth, then extended to incorporate an additional bathroom, living area and bedroom.

Currently this home is set up so that the front house is 3br, 1 bth, and the 4th bedroom acts as a second bedroom in the extension offering seperate living for those who have teens or extended family looking for their pwn space. The possibilities here are sure to be accommodating for a variety of needs.

Liveable as is OR ideal for a full overhaul, this home would make a sound investment or the perfect home for someone who has an elderly family member living with them as well. New carpet, paint, bathrooms and kitchens will give this home a new lease on life.

Ramps offer elderly friendly access to the home and being an ex government build (owned privately since 1969) you can be sure the house has solid bones too!

There's a secure yard out the back, the front yard is enclosed and it is only a stones throw away from transport (20m away on the corner), the park (100m away), the Wollondilly walking track (200m away) and soo much more.

Contact Chris from Agent 2.0 Real Estate for a private inspection today!

5 2 2 623 m2
Address 16 MEEHAN STREET, Goulburn
Price SOLD for $351,000
Property Type Residential
Property ID 18
Category House
Land Area 623 m2

Agent Details

Chris Rigney photo

Chris Rigney

0488 744 639
View Profile