THE QUALITY IS ON POINT!

It is with great pride that Agent 2.0 Real Estate brings to the market another impeccably finished, Jason Montgomery Constructions build, found at 3 Quiberon Way, Goulburn.

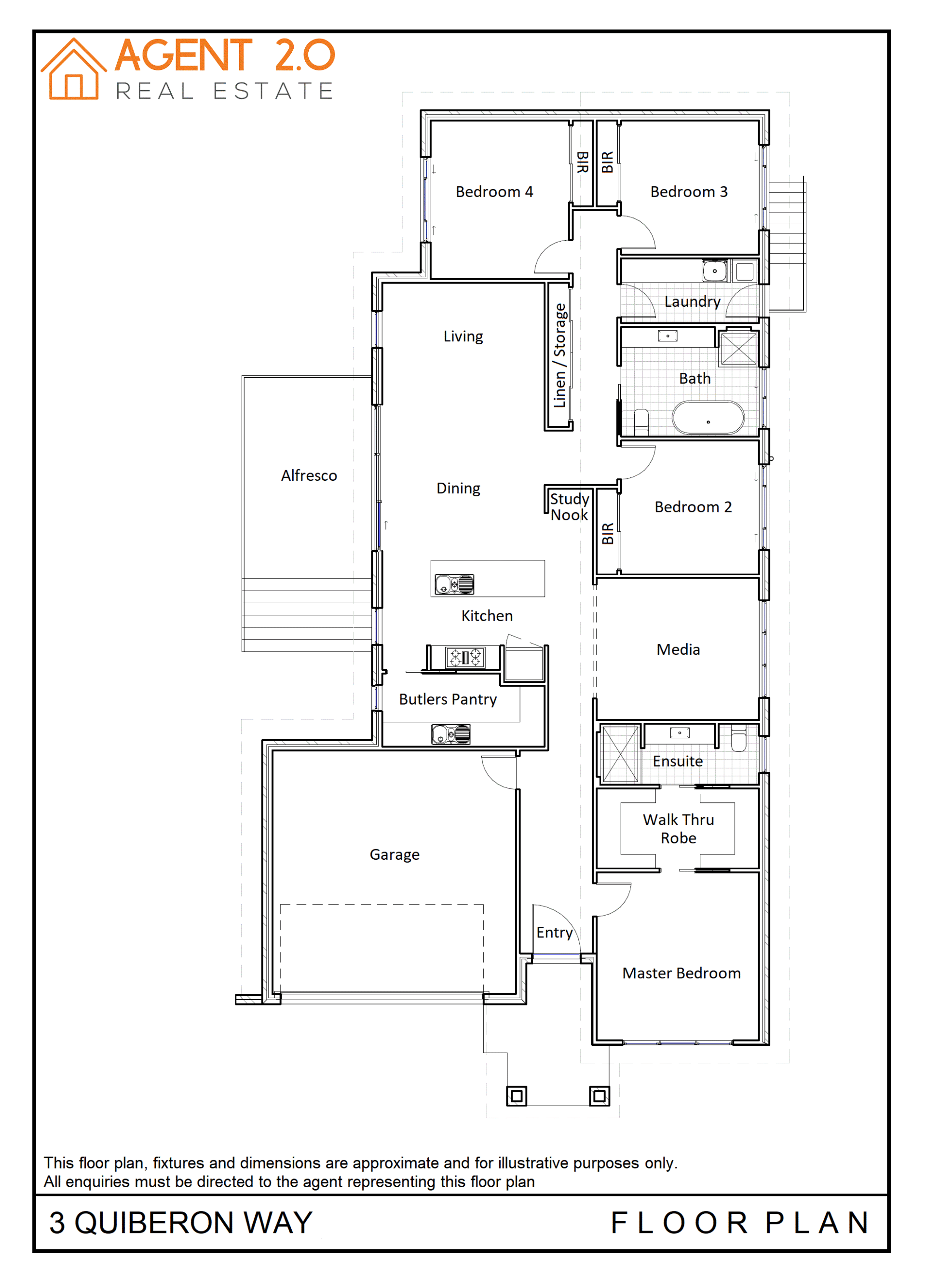
This stunning 4 bedroom home is finished to the highest of standards. The layout is perfect for a family, downsizers, first home buyers and everyone in between.

Entering this home you will be in awe of the genuine spotted gum timber flooring that greets you.

At the front of the home is the master bedroom it is spacious, light filled and has a his not hers walk-thru robe to the stunning ensuite.

The other 3 bedrooms are located at the rear of the home. They also have ample space, built in robes and are near the bathroom featuring custom cabinetry and a huge bath to relax in!

Living in this home is split between the rear living / dining room and home theatre room. Ducted heating and cooling throughout ensure your comfort year round.

The kitchen is a true standout feature of this executive home. With ceasarstone benchtops, smokey mirror splashback, oversized fridge space, slow close cabinetry, genuine butler’s pantry and an expansive amount of storage.

Outside is a flat, extremely low maintenance yard with lush grass, side access and secure fencing all round.

There is so much to love about this home - make sure you inspect this property before it is gone.

Contact Chris Rigney on 0488 744 639 and arrange a private inspection in order to truly appreciate the quality this amazing home has to offer.

4 2 2 713 m2
Address 3 Quiberon Way, Goulburn
Price SOLD for $659,000
Property Type Residential
Property ID 55
Category House
Land Area 713 m2

Agent Details

Chris Rigney photo

Chris Rigney

0488 744 639
View Profile